Company Logo
SIGN UP LOGIN
Refine Search

3223 Comber Ct Ne, Salem, OR 97305

$319,900
  • 3223 Comber Ct Ne, Salem, OR 97305 Main Photo
Virtual Tour

44 Total Photos [Click to View All]

Active Price Reduced by $10,000 on March 4th, 2026

Listing Courtesy of: BERKSHIRE HATHAWAY HOMESERVICES R E PROF
Agency Contact: Cell: 503-983-4405
IDX logo


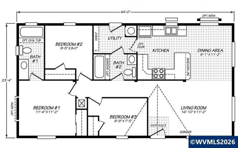
BEDS3 BATHS2 full SQUARE FEET1,027 MLS#834239
STATUS PROPERTY TYPEResidential - Mobile Home SUBDIVISIONSurfwood Villa

Property Description

Affordable living in this brand new 3 bedroom, 2 bathroom home on the outskirts of Salem. Offering both comfort and value this single level home is move in ready! It is a great option for a range of buyers, whether it is your first home, last home, or a second home. You will not find a smarter or more affordable choice. Unlike many manufactured communities, this sale includes both the home and the land, so no space rent or long term lease to worry about. It is an excellent choice for a low maintenance lifestyle. The home features a modern open concept layout with a spacious and beautifully finished kitchen. High ceilings and thoughtfully placed windows fill the space with natural light, creating a warm and inviting atmosphere. The private primary suite offers a walk in closet and a full bath, providing both comfort and convenience. Two additional bedrooms offer flexibility for guests, hobbies, or a home office, while the second bathroom includes a tub and shower combination for versatility. Enjoy peace of mind with everything brand new, from the roof, siding, and windows to the furnace and finishes throughout. Spend more time living and less time maintaining. Outside, you will find space to garden, relax, or simply take in the peaceful surroundings. This lot features one of the best views in the community, backing up to a large green space. The community offers expansive green areas, walking paths, a clubhouse, pool, and RV or boat parking, all for an unbeatable HOA of only 60 dollars per month, which even covers your water bill. With low county taxes and full ownership of both the home and the land, this is one of the smartest and most affordable paths to homeownership in the Salem area. Whether you are settling down, scaling back, or seeking an affordable base for Oregon adventures, this brand new home delivers modern comfort at an incredible value!

Property Features

Property Type: Residential - Mobile Home
Fenced: Yes
Lot Size: 0.08 Acres
Roof Type: Composition
Taxes: $975
Year Built: 2025

Feature Descriptions

Bathroom(s) (Level): 2.00 (Main)
Days on Site: 139
Dining Room: Area (Combination)
Exterior: Wood
Fenced Yard: Partial
Flooring: Carpet, Vinyl
Heating/Cooling: Forced Air
Homeowners Association Amenities: Other (Refer to Remarks), Swimming Pool
Lot Dimensions: 0.08 Acre(s)
Lot Type: Irregular
Patio: Deck
Price Per Square Foot: 311.49
Range: Electric, Range Included
Sewer: Yes
Special View Info: Territorial
Water: City, Connected
Water Heater: Electric

Room Sizes

Primary Bedroom: 11 X 11 Level 1/Main
Bedroom 2: 10 X 9 Level 1/Main
Bedroom 3: 10 X 8 Level 1/Main
Dining Room: 9 X 11 Level 1/Main
Living Room: 17 X 11 Level 1/Main

Local Schools

High School: McKay
Middle School: Waldo
Elementary School: Scott

Listed By / Shown By

Listed By

Agency Name: BERKSHIRE HATHAWAY HOMESERVICES R E PROF
Agency Contact: Cell: 503-983-4405

Shown By

Agency Title: Coldwell Banker Valley Brokers
Albany: 541.928.6317
Corvallis: 541.757.0222

IDX logo

Estimate Your Payment

Estimated Payment

$ 886.51 per month $711.96 Principal & Interest $81.25 Property Tax $93.30 Homeowner's Insurance

Change Payment Information

%
years/fixed
yearly
yearly (est.)
(Payments are an estimate and may vary by lender)

Login to My Homefinder